Rehabilitación en Conde Miranda, Madrid
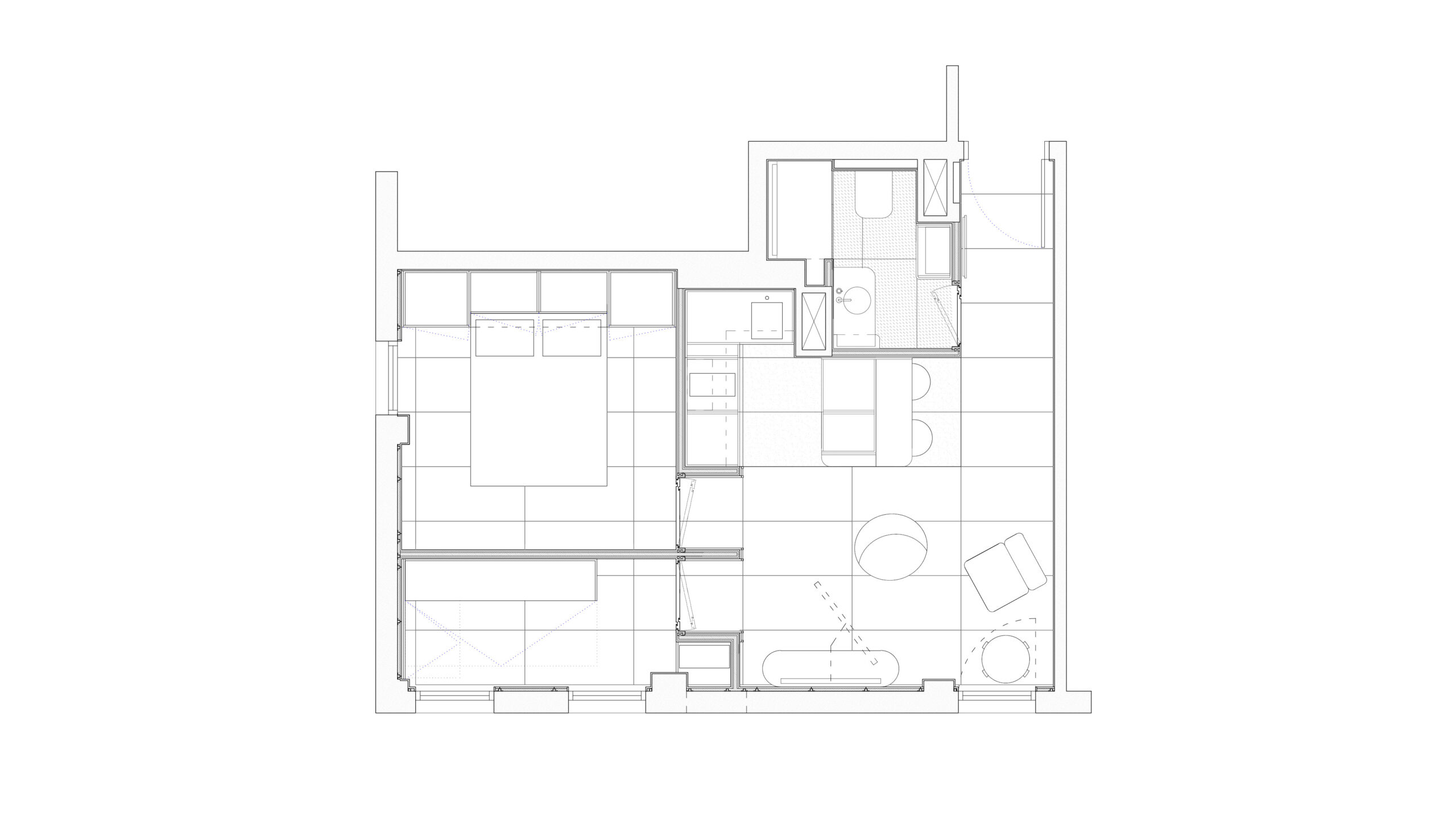
Intervención integral de interiorismo y rehabilitación que transforma el apartamento, poniendo en valor la espacialidad original y la calidad de los materiales. Un proyecto que busca armonizar funcionalidad, luz y detalle constructivo en cada espacio.






